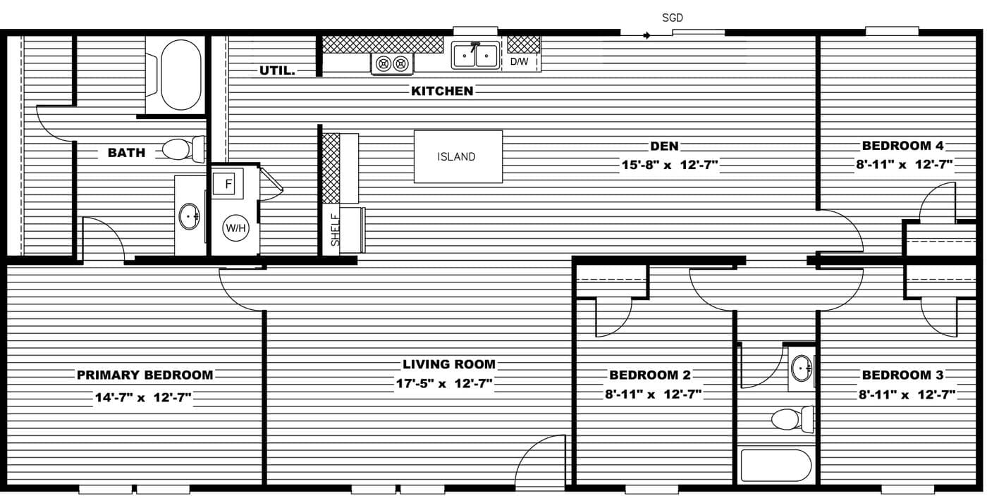
Homes | Marvel 4 | Brookhaven