
Magnolia Estates
Magnolia Estates proudly serves the citizens of Mississippi, Louisiana, and Arkansas by offering high quality & durable manufactured homes & modular homes for sale
MISSISSIPPI
Enter your address or APN to check if this home fits on your property
Enter your property street address or APN
Dealer License #:
Images of homes are solely for illustrative purposes and should not be relied upon. Images may not accurately represent the actual condition of a home as constructed, and may contain options which are not standard on all homes.
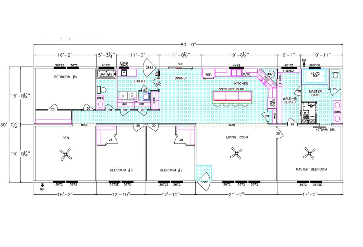
Vicksburg
4 Bed | 2 Bath | 2,400 Sq. Ft. | 32' x 80'
4 Bed | 2 Bath | 2,400 Sq. Ft. | 30' x 80'
4 Bed | 2 Bath | 2,400 Sq. Ft. | 30' x 80'
4 Bed | 2 Bath | 2,400 Sq. Ft. | 30' x 80'